Z941H电动法兰闸阀
产品概况
产品型号:Z941H
公称通径:NPS 2"~48" DN40~1200mm
压力范围:CL150~2500 PN10~420MPa
工作温度:-29℃~+600℃
主体材质:碳钢、不锈钢、合金钢
设计规范:GB/T 12234
结构长度:GB/T 12221
连接法兰:JB/T 79
试验与检验:JB/T 9092
压力-温度:GB/T 9131
产品标识:GB/T 12220
百钢阀门集团生产销售的Z941H电动法兰闸阀广泛适用于石油化工,火力发电厂等油品、水蒸气管路上作接通或截断管路中介质的启闭装置。
Z941H电动法兰闸阀特点
(1)流动阻力小。阀体内部介质通道是直通的,介质成直线流动,流动阻力小。
(2)启闭时较省力。是与截止阀相比而言,因为无论是开或闭,闸板运动方向均与介质流动方 向相垂直。
(3)高度大,启闭时间长。闸板的启闭行程较大,降是通过螺杆进行的。
(4)水锤现象不易产生。原因是关闭时间长。
(5)介质可向两侧任意方向流动,易于安装。闸阀通道两侧是对称的。
(6)结构长度(系壳体两连接端面之间的距离)较小。
(7)密封面易磨损,影响使用寿命。启闭时,闸板与阀座两个密封面相互摩擦滑动,要介质压力作用下易产生擦伤磨损,影响密封性能,缩短使用寿命。
(8)价格较贵。接触密封面较多,加工较复杂,特别是闸板座上的密封面不易加工,而且零件较多。
(9)形体简单 , 结构长度短,制造工艺性好,适用范围广。
(10)结构紧凑,阀门刚性好,通道流畅,流阻数小,密封面采用不锈钢和硬质合金,使用寿命长,采用PTFE填料,密封可靠,操作轻便灵活。
Z941H电动法兰闸阀特点-性能规范
|
型号 |
公称压力 |
实验压力 |
工作温度(℃) |
适用介质 |
||
|
强度水(MPa) |
密封(水)空气(MPa) |
低压密封空气(MPa) |
||||
|
Z41H-16C |
1.6 |
2.4 |
1.8 |
0.6 |
≤425 |
硝酸类 |
|
Z41W-25P(R) |
2.5 |
3.8 |
2.8 |
0.6 |
≤200 |
醋酸类 |
|
Z41W-40P(R) |
4.0 |
6.0 |
4.4 |
0.6 |
≤200 |
硝酸类 |
|
Z41W-64P(R) |
6.4 |
9.6 |
7.0 |
0.6 |
≤200 |
醋酸类 |
Z941H电动法兰闸阀特点-主要零件材质
|
阀体/阀盖 |
ZGICr18Ni9Ti |
ZG00Cr18Ni10 |
ZG1Cr18Ni12M02Ti |
ZG00Cr17Ni14M02 |
WCB |
|
零件名称 |
ZGICr18Ni9Tit系列 |
ZG00Cr18Ni10系列 |
ZG1Cr18Ni12M02Ti系列 |
ZG00Cr17Ni14M02系列 |
WCB系列 |
|
闸板 |
ZGICr18Ni9Ti |
ZG00Cr18Ni10 |
ZG1Cr18Ni12M02Ti |
ZG00Cr17Ni14M02 |
1Cr13 |
|
阀杆 |
1Cr18Ni9Ti |
00Cr18Ni10 |
1Cr18Ni12M02Ti |
00Cr17Ni14M02 |
1Cr13 |
|
填料 |
PTFE编织 |
PTFE编织 |
PTFE编织 |
PTFE编织 |
石墨 |
|
垫片 |
304L+PTFE |
304L+PTFE |
316+PTFE |
316L+PTFE |
石墨 |
|
压盖 |
ZGICr18Ni9Ti |
ZG00Cr18Ni10 |
ZG1Cr18Ni12M02Ti |
ZG00Cr17Ni14M02系列 |
WCB |
|
填料压环 |
1Cr18Ni9Ti |
00Cr18Ni10 |
1Cr18Ni12M02Ti |
00Cr17Ni14M02 |
1Cr13 |
|
螺栓 |
1Cr17Ni2 |
1Cr17Ni2 |
1Cr17Ni2 |
1Cr17Ni2 |
35CrMoA |
|
螺母 |
1Cr18Ni9Ti |
1Cr18Ni9Ti |
1Cr18Ni9Ti |
1Cr18Ni9Ti |
45 |
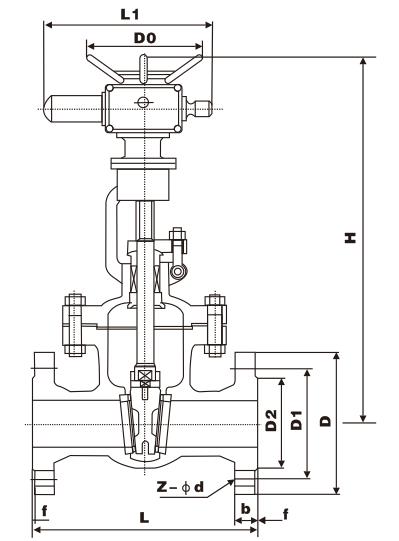
Z941H电动法兰闸阀特点主要外形尺寸及重量

|
公称压力 PN(MPa) |
通径 DN(mm) |
L | D | D1 | D2 | b | Z-ød | D3 | H | H1 | D0 |
重量 (kg) |
| 1.6 | 40 | 240 | 150 | 110 | 88 | 20 | 4-ø17.5 | 164 | 602 | 602 | 300 | 68 |
| 50 | 250 | 165 | 125 | 102 | 20 | 4-ø17.5 | 164 | 610 | 610 | 300 | 69 | |
| 65 | 270 | 185 | 145 | 122 | 20 | 4-ø17.5 | 164 | 612 | 612 | 300 | 80 | |
| 80 | 280 | 200 | 160 | 133 | 20 | 8-ø17.5 | 195 | 690 | 690 | 300 | 83 | |
| 100 | 300 | 220 | 180 | 158 | 20 | 8-ø17.5 | 220 | 833 | 833 | 300 | 94 | |
| 125 | 325 | 250 | 210 | 184 | 22 | 8-ø17.5 | 268 | 867 | 876 | 300 | 125 | |
| 150 | 350 | 285 | 240 | 212 | 24 | 8-ø22 | 280 | 958 | 958 | 300 | 160 | |
| 200 | 400 | 340 | 295 | 268 | 26 | 12-ø22 | 370 | 1096 | 1096 | 300 | 225 | |
| 250 | 450 | 405 | 355 | 320 | 30 | 12-ø26 | 460 | 1244 | 1244 | 300 | 348 | |
| 300 | 500 | 460 | 410 | 370 | 30 | 12-ø26 | 530 | 1430 | 1474 | 400 | 485 | |
| 350 | 550 | 520 | 470 | 430 | 34 | 16-ø26 | 610 | 1565 | 1663 | 400 | 696 | |
| 400 | 600 | 580 | 525 | 482 | 36 | 16-ø30 | 710 | 1735 | 1886 | 400 | 1000 | |
| 500 | 700 | 715 | 650 | 585 | 44 | 20-ø33 | 5860 | 1961 | 2181 | 400 | 1064 |
温馨提示:
本文中所有文字、数据、图片均只适用于参考。需要查看更多的Z941H电动法兰闸阀性能参数、结构尺寸参数、价格等详情,或要求高质量印刷样本,请联系我们。